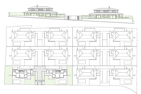
12 VIVIENDAS UNIFAMILIARES EN ARAVACA
2002
Cliente: BANCAM SA
Superficie: 5.395 m2
Estas 12 viviendas unifamiliares, que se desarrollan en una sola parcela compartiendo accesos comunes, se proyectaron según la orientación al Sur.
Los gustos del cliente en cuanto a imagen nos llevaron a inspirarnos en Frank Lloyd Wright.






