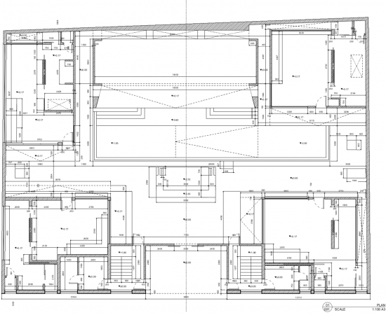
VIVIENDAS EN BALI
2018
Cliente: Privado
Superficie: 2000m2
Entre los campos de arrozales cerca de la zona de Nusa Dua, se sitúa este complejo de 8 Villas con proyección turística.
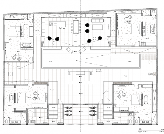
El conjunto se plantea como Villas privadas en dónde cada habitación forma una unidad en si misma y las zonas comunes forman un pieza independiente más del proyecto.
Los volúmenes actúan de manera independiente y tienen zonas verdes privadas a la vez que participan de las zonas comunes. Los materiales del lugar, como la piedra, la madera y el bambú conforman la estética del conjunto.
Las aperturas visuales de la propuesta nos encuadran el entorno inmediato dando lugar a espacios interiores relacionados con el exterior.







